תפריט

סהרון 6–12

סהרון 6–12 מביא לכם את הקסם היפואי

מדובר בפרויקט חדש בתל אביב–יפו, הממוקם ברחוב שקט במרכז המתחדש של יפו, ומציע לכם הזדמנות לחיות במתחם מגורים ייחודי, קרוב לים ולכל מה שחשוב. אם חלמתם לגור בלב יפו וליהנות מאורח חיים המשלב בין תרבות, היסטוריה ואיכות חיים מודרנית, פרויקט סהרון 6–12 הוא בדיוק מה שחיפשתם.

יותר
image
אדריכל עופר סגל
סטטוס בביצוע
סטטוס שיווק בשיווק
סוג הפרויקט חיזוק
דירות קיימות 32
דירות יזם 28
סה״כ דירות 60

פרויקט חדש בתל אביב–יפו

סהרון 6–12 מביא לכם את הקסם היפואי

אם חלמתם לגור בלב יפו וליהנות מאורח חיים המשלב בין תרבות, היסטוריה ואיכות חיים מודרנית, פרויקט סהרון 6–12 הוא בדיוק מה שחיפשתם. מדובר בפרויקט חדש בתל אביב–יפו, הממוקם ברחוב שקט במרכז המתחדש של יפו, ומציע לכם הזדמנות לחיות במתחם מגורים ייחודי, קרוב לים ולכל מה שחשוב.

דירות חדשות למכירה בלב יפו

פרויקט סהרון 6–12 כולל מגוון רחב של דירות חדשות למכירה שתוכננו בקפידה, כדי לספק לכם חוויית מגורים בלתי מתפשרת:

  • דירות 3 ו-4 חדרים מושקעות עם מרפסות שמש רחבות.
  • דירות גן מרווחות עם חצר פרטית מושלמת למשפחות.
  • פנטהאוזים יוקרתיים עם נוף פתוח ואיכות חיים ברמה הגבוהה ביותר.

כל הדירות נבנו בסטנדרטים גבוהים וכוללות מפרט טכני עשיר, כך שתוכלו להיכנס לבית חלומותיכם ללא פשרות. בין היתר תיהנו מ:

  • חניה פרטית אוטומטית במתחם תת-קרקעי.
  • מטבחי יוקרה עם משטחי אבן קיסר ומגירות טריקה שקטה.
  • מרפסות שמש עם נקודות מים מובנות.
  • מערכות מתקדמות של חשמל תלת פאזי ואינטרקום צבעוני.

מגורים בלב הסצנה היפואית

סהרון 6–12, הממוקם במיקום אסטרטגי בלב יפו המתחדשת, מאפשר לכם ליהנות מכל היתרונות של העיר ושל הסביבה הקסומה:

  • מרחק הליכה קצר מהים ומטיילת יפו הפסטורלית.
  • קרבה לשוק הפשפשים התוסס, נמל יפו ואזורי הקולינריה המובילים.
  • נגישות גבוהה לתחבורה ציבורית, מוסדות חינוך ומרכזי תרבות.

הפרויקט מעניק חוויית מגורים ייחודית – מצד אחד קהילה חמה ותוססת, ומצד שני פרטיות ושלווה בשכונה שקטה בלב יפו.

פרויקט חדש בתל אביב–יפו: הזדמנות שלא תחזור

פרויקט סהרון 6–12 הוא לא רק בית – הוא דרך חיים. בין אם אתם מחפשים דירות חדשות למכירה בתל אביב–יפו למשפחה, להשקעה, או כנקודת התחלה חדשה, מדובר בפרויקט שעונה על כל הדרישות שלכם – עיצוב מוקפד, איכות בנייה גבוהה ומיקום חלומי.

החיים החדשים שלכם מתחילים כאן

דמיינו את עצמכם קמים בכל בוקר לשלוות הים, עם חיי עיר תוססים מסביבכם. סהרון 6–12 מציע לכם יותר מסתם דירה – הוא מעניק לכם בית בלב אחת השכונות המבוקשות והמתחדשות ביותר בתל אביב–יפו.

☎ אל תחכו! צרו קשר עוד היום לפרטים נוספים או לתיאום פגישה אישית.

דירות חדשות למכירה בתל אביב–יפו מחכות לכם בפרויקט המרגש ביותר בעיר.

בניין בוטיק איכותי

פרויקט מגורים אינטימי עם סטנדרט גבוה

חומרי גמר יוקרתיים

מטבחים מעוצבים עם אי שיש ומפרט איכותי

קרבה לפארק הירקון

מרחבים ירוקים לפנאי, ספורט והליכות

אזור קניות יוקרתי

חנויות מותגים בינלאומיים בכיכר המדינה

בתי קפה ומסעדות

חוויית בילוי קולינרית במרחק הליכה

נבנה עבורכם על ידי

צוות "קן התור

הבניין ממוקם בפינת הרחובות ליסין והלסינקי, תכנון המאפשר לכל דירה ליהנות משפע של אור טבעי וזרימת אוויר מקסימלית

פרויקט הבוטיק מתנשא לגובה של 7 קומות בלבד וכולל מפרט טכני עשיר ברמה הגבוהה ביותר.

הדיירים נהנים ממיקום אסטרטגי במרחק דקות הליכה מכיכר המדינה – מוקד האופנה, התרבות והמסעדות של העיר

image
image
image

חוויית המגורים מסביב לפרויקט

על המפה
image

לוקיישן
עיצוב פנים

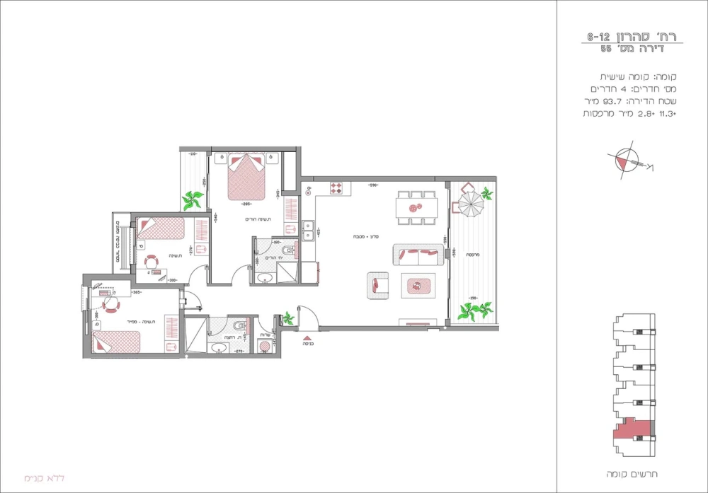
תכניות דירה

2
3
4

דירת גן. גינה פרטית רחבת ידיים בלב הצפון הישן. תחושה של בית פרטי בתוך בניין בוטיק יוקרתי

image
image
image

בחירת דירה

מעבר לאתר

השארת פרטים

למילוי הטופס

פרויקטים בשיווק

בונים את העתיד

בשיווק
Object image
Object image
Object image

מעפילי אגוז 32

תל־אביב–יפו

לפרטים
בשיווק
Object image
Object image
Object image

ויצמן 80–88

תל־אביב–יפו

לפרטים

FAQ


מהו מיקום הפרויקט?
הפרויקט ממוקם ברחוב סהרון 6–12, בלב יפו המתחדשת.
כמה בניינים כולל הפרויקט?
הפרויקט כולל שלושה בניינים בני שש קומות כל אחד.
אילו סוגי דירות מוצעים בפרויקט?
בפרויקט מוצעות דירות 3 ו-4 חדרים, דירות גן ופנטהאוזים.
האם לכל דירה יש חניה צמודה?
כן, לכל דירה בפרויקט יש חניה צמודה.
מהו הסטנדרט הבנייה בפרויקט?
הדירות נבנות בסטנדרטים הגבוהים ביותר, עם מפרט טכני עשיר.
האם הדירות כוללות מרפסות?
כן, לכל דירה מרפסת שמש גדולה הצופה לנוף מהפנט.
מהי הסביבה הקרובה לפרויקט?
הפרויקט ממוקם בסביבה שקטה בלב יפו, קרוב למוקדי בילוי, תרבות וקולינריה.
האם הפרויקט חלק מתהליך התחדשות עירונית?
כן, הפרויקט הוא חלק מתהליך התחדשות עירונית באזור יפו.
מי האדריכל של הפרויקט?
האדריכל של הפרויקט הוא עופר סגל.
כיצד ניתן לקבל מידע נוסף?
ניתן להשאיר פרטים באתר הפרויקט, ונציגינו יחזרו אליכם בהקדם.
התאמות נגישות באתר
שינוי צבע טקסט
שינוי צבע רקע
שינוי צבע כותרות
הגדלה והקטנת הגופן
שינוי מרווח בין שורות
שינוי מרווח בין אותיות
wa
wa
איך אפשר לעזור?

סרקו את הברקוד כדי לעבור לנציג שירות

qr